Добро пожаловать на http://vipplan.ru

Випплан Можга - это тысячи проектов домов в нашем каталоге!

Вы всегда сможете найти для себя проект дома вашей мечты! Даже если этого не случилось, мы готовы в любую минуту предложить проект индивидуального дома.

Забыли пароль?
Вы еще не регистрировались?

Перейдите по ссылке ниже на страницу регистрации.

Регистрация...

Внимание!!!

В проектную документацию могут быть внесены изменения любой сложности, в соответствии в Вашими пожеланиями!

Полезные статьи

Зачем нужен проект дома?

Зачем нужен проект? - спросите вы. Проект дома является важной и неотъемлемой частью при строительстве дома. После покупки проекта, вы получите разрешение на строительство, предоставив его в местную архитектуру, а после, с его помощью, построите дом....

Сборные фундаменты

В наше время все большую популярность при строительстве дома приобретают сборные бетонные и железобетонные блоки. Их использование значительно сокращает время работ и снижает их трудоемкость....

Проекты домов и коттеджей > Каталог проектов домов > Проект индивидуального двухэтажного жилого дома Vg1178

Проект индивидуального двухэтажного жилого дома Vg1178

Проект индивидуального  двухэтажного  жилого дома
Зарегистрируйтесь

Проект № Vg1178


Техническое описание
Общая площадь: 323.72 м2
Жилая площадь: 136.38 м2
Высота здания: 9.56 м
Размеры дома: 21.78м×12.98м
Цокольный этаж: есть
Гараж: есть
Мансарда: есть

Kонструкция
Фундамент: Ленточный
Перекрытия: Деревянные балки
Материал стен: Газобетон

Архитектурный раздел
Конструктивный раздел
АР+КР - 84 000 (Со скидкой 20%)
Проект индивидуального двухэтажного жилого дома с мансардой и подвалом, размерами 21,78 х 12,98 м. Наружная отделка здания – облицовочный кирпич. Цоколь – камень. Вентканалы и дымоходы — клинкерная плитка. Кровля – металлочерепица. Фундамент – ленточный монолитный и свайно-ростверковый (буронабивной). Наружные стены: газобетонные блоки, воздушный зазор, облицовочный кирпич. Внутренние стены и перегородки – каркасные с ГКЛ. Пол первого этажа – пол по грунту. Перекрытие над подвалом — монолитная ж/б плита. Межэтажное перекрытие - по деревянным балкам с использованием теплошумоизоляционных материалов типа «URSA» в межбалочном пространстве. Крыша многоскатная. Окна металлопластиковые, выполненные по индивидуальному заказу.
Генплан застройки участка / Паспорт проекта 7000 руб / 10000 руб
Инженерный раздел (полный) 162000 руб
Смета на строительство 81000 руб
Теплотехнический расчет материалов стен Бесплатно
Стоимость проекта со незначительнми изменениями 96900 руб
Стоимость проекта со средними изменениями* 121200 руб
Стоимость проекта со значительными изменениями** 127700 руб

План цокольного этажа


Помещение 1 — 8,97 м2
Помещение 2 — 4,95 м2
Помещение 3 — 6,80 м2

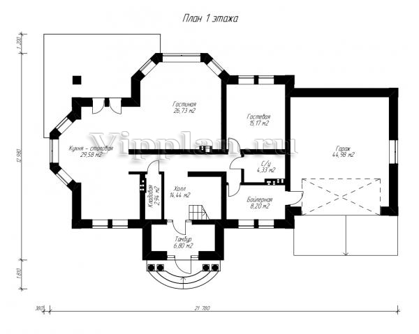
План первого этажа


Тамбур — 6,80 м2
Холл — 14,44 м2
Кладовая — 2,94 м2
Кухня — 29,58 м2
Гостиная — 26,73 м2
Гостевая — 15,17 м2
С/у — 4,33 м2
Бойлерная — 8,20 м2
Гараж — 44,98 м2

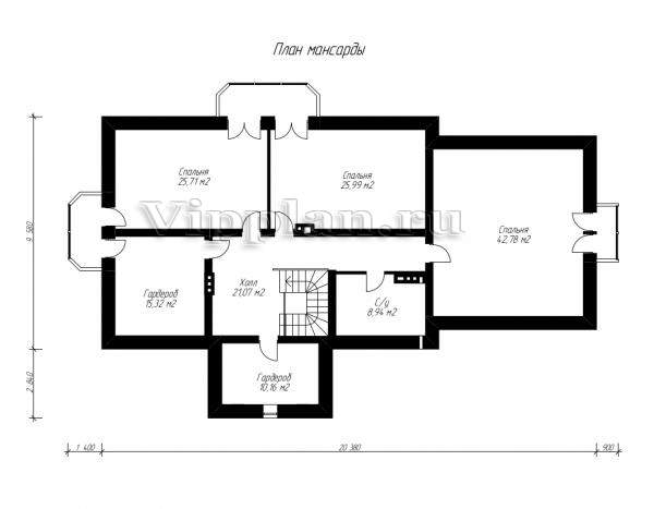
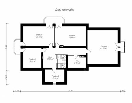
План мансардного этажа


Холл — 21,07 м2
Спальня — 25,71 м2
Спальня — 25,99 м2
Гардероб — 15,32 м2
С/у — 8,94 м2
Гардероб — 10,16 м2
Спальня — 42,78 м2
Проект индивидуального  двухэтажного  жилого дома Проект индивидуального  двухэтажного  жилого дома Проект индивидуального  двухэтажного  жилого дома Проект индивидуального  двухэтажного  жилого дома

Модификации проектов

Внесение изменений и привязка к участку строительства

В любой из проектов от компании VIPplan - Можга по вашему желанию могут быть внесены изменения в материалы стен, материалы наружной отделки дома, а также будет произведена адаптация проекта под конкретный регион строительства (с учетом грунтов региона, геологических особенностей вашего участка и местных климатических условий) - БЕСПЛАТНО !!! (кроме проектов со скидкой и проектов наших партнеров).

Любой из проектов, размещенных на сайте mojga.vipplan.ru мы можем выполнить из требуемых вам строительных материалов: ячеистый бетон (газобетон, пеноблок), керамоблок, кирпич, шлакоблок, бетонный блок, дерево (брус, клееный брус), каркасная технология (деревянный каркас, металлокаркас (ЛСТК)).

Фасад дома и его наружную отделку так же возможно выполнить с применением различных облицовочных материалов: структурной штукатурки, (с утеплителем и без), сайдингом (пластиковый или металлосайдинг), фиброплитами, кирпича.

 
6 Избранные
проекты

Доставка проектов по России: Москва (Московская область), Санкт-Петербург (Ленинградская область), Краснодар, Ростов-на-Дону, Ставрополь, Сочи, Волгоград, Новосибирск, Белгород, Брянск, Воронеж, Саратов, Хабаровск, Астрахань, Нальчик, Владикавказ, Екатеринбург, Тюмень, Самара, Нижний Новгород, Казань, Пермь, Уфа, Челябинск, Красноярск, Ханты-Мансийск, Иркутск, Курган, Оренбург, Омск, Томск, Барнаул, Новокузнецк, Кемерово, Абакан, Чита, Якутск, Южно-Сахалинск, Петропавловск-Камчатский и страны ближнего зарубежья: Белоруссия, Украина, Казахстан