Добро пожаловать на http://vipplan.ru

Випплан Можга - это тысячи проектов домов в нашем каталоге!

Вы всегда сможете найти для себя проект дома вашей мечты! Даже если этого не случилось, мы готовы в любую минуту предложить проект индивидуального дома.

Забыли пароль?
Вы еще не регистрировались?

Перейдите по ссылке ниже на страницу регистрации.

Регистрация...

Внимание!!!

В проектную документацию могут быть внесены изменения любой сложности, в соответствии в Вашими пожеланиями!

Полезные статьи

Виды фундаментов

Можно смело сказать, что самое главное качество фундамента - надежность. Фундамент дома бывает нескольких видов. Все они отличаются прочностью, технологией закладывания и областью использования. Запомните, экономить на фундаменте – плохая идея. Затраты на ремонт будут огромными, а зачастую в случае нарушения технологии закладки фундамента исправить ошибку будет невозможно....

Приобретение земельного участка в собственность

Вы собираетесь приобрести участок. Прежде чем принять окончательное решение, тщательно изучите местность, на которой находится ваш участок, внимательно осмотрите местность. Узнайте о близости реки или других водоемах, всмотритесь в рельеф. Каждый из факторов может иметь неоспоримые плюсы, а также минусы, способные повлиять на окончательное решение. Стоит принять во внимание, что земельные участки, которые продаются «напрямую», дешевле тех, которые реализуют, пользуясь услугами посредников....

Проекты домов и коттеджей > Каталог проектов домов > Проект функционального одноэтажного дома Vg1443

Проект функционального одноэтажного дома Vg1443

Проект функционального одноэтажного дома
Зарегистрируйтесь

Проект № Vg1443


Техническое описание
Общая площадь: 206.8 м2
Высота здания: 7.44 м
Размеры дома: 15.64м×18.94м
Кол-во комнат: 4
Цокольный этаж: нет
Гараж: есть
Мансарда: нет

Kонструкция
Фундамент: буронабивной (свайно-ростверковый)
Перекрытия: деревянные балки
Материал стен: газобетонные блоки

Архитектурный раздел
Конструктивный раздел
Инженерный раздел
АР+КР - 64 000 (Со скидкой 20%)
АР+КР+ИР - 136 450 (Со скидкой 50%)
Проект индивидуального одноэтажного одноквартирного жилого дома с размерами 15,64х18,94 м. Наружная отделка здания – сайдинг двух цветов. Цоколь - клинкерная плитка. Фундамент – буронабивной (свайно-ростверковый). Наружные стены запроектированы из: газосиликат, утеплитель и декоративной штукатурки. Внутренние стены и перегородки - газобетонных блоков. Перемычки - монолитные и сварные из профиля проката. Пол 1 этажа - пол по грунту. Крыша - многоскатная. Материал кровли – металлочерепица. Окна - металлопластиковые, выполненные по индивидуальному заказу. Лестница выполняется по индивидуальному заказу.
Генплан застройки участка / Паспорт проекта 7000 руб / 10000 руб
Инженерный раздел (полный) 72450 руб (103500 руб)
Смета на строительство 51750 руб
Теплотехнический расчет материалов стен Бесплатно
Стоимость проекта со незначительнми изменениями 74800 руб
Стоимость проекта со средними изменениями* 90400 руб
Стоимость проекта со значительными изменениями** 94500 руб

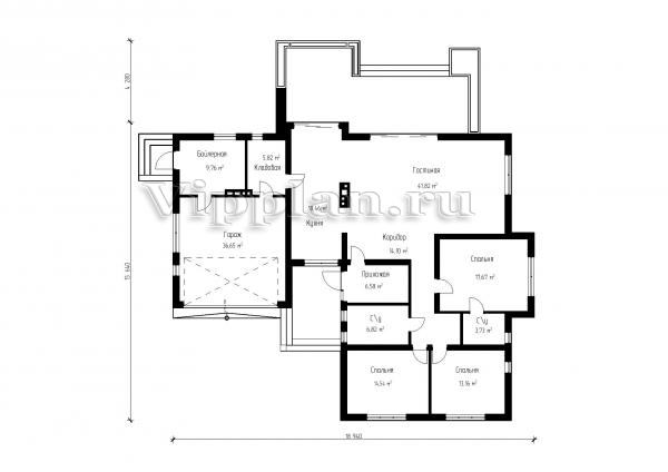
План первого этажа


Гостиная - 41,82 м2
Коридор - 14,10 м2
Кухня - 18,46 м2
Кладовая - 5,82 м2
Бойлерная - 9,86 м2
Гараж - 36,65 м2
Прихожая - 6,58 м2
С/у - 6,82 м2
Спальня - 14,54 м2
Спальня - 13,16 м2
С/у - 3,73 м2
Спальня - 17,67 м2
Проект функционального одноэтажного дома Проект функционального одноэтажного дома Проект функционального одноэтажного дома Проект функционального одноэтажного дома

Модификации проектов

Внесение изменений и привязка к участку строительства

В любой из проектов от компании VIPplan - Можга по вашему желанию могут быть внесены изменения в материалы стен, материалы наружной отделки дома, а также будет произведена адаптация проекта под конкретный регион строительства (с учетом грунтов региона, геологических особенностей вашего участка и местных климатических условий) - БЕСПЛАТНО !!! (кроме проектов со скидкой и проектов наших партнеров).

Любой из проектов, размещенных на сайте mojga.vipplan.ru мы можем выполнить из требуемых вам строительных материалов: ячеистый бетон (газобетон, пеноблок), керамоблок, кирпич, шлакоблок, бетонный блок, дерево (брус, клееный брус), каркасная технология (деревянный каркас, металлокаркас (ЛСТК)).

Фасад дома и его наружную отделку так же возможно выполнить с применением различных облицовочных материалов: структурной штукатурки, (с утеплителем и без), сайдингом (пластиковый или металлосайдинг), фиброплитами, кирпича.

 
6 Избранные
проекты

Доставка проектов по России: Москва (Московская область), Санкт-Петербург (Ленинградская область), Краснодар, Ростов-на-Дону, Ставрополь, Сочи, Волгоград, Новосибирск, Белгород, Брянск, Воронеж, Саратов, Хабаровск, Астрахань, Нальчик, Владикавказ, Екатеринбург, Тюмень, Самара, Нижний Новгород, Казань, Пермь, Уфа, Челябинск, Красноярск, Ханты-Мансийск, Иркутск, Курган, Оренбург, Омск, Томск, Барнаул, Новокузнецк, Кемерово, Абакан, Чита, Якутск, Южно-Сахалинск, Петропавловск-Камчатский и страны ближнего зарубежья: Белоруссия, Украина, Казахстан