Добро пожаловать на http://vipplan.ru

Випплан Можга - это тысячи проектов домов в нашем каталоге!

Вы всегда сможете найти для себя проект дома вашей мечты! Даже если этого не случилось, мы готовы в любую минуту предложить проект индивидуального дома.

Забыли пароль?
Вы еще не регистрировались?

Перейдите по ссылке ниже на страницу регистрации.

Регистрация...

Внимание!!!

В проектную документацию могут быть внесены изменения любой сложности, в соответствии в Вашими пожеланиями!

Полезные статьи

Правильная изоляция подвала

Какой выбрать материал, как правильно выполнить работу, перед началом изоляции подвала какие подготовительно-строительные работы следует провести и какой момент играет правильное выполнение работ. Последние несколько лет придали много хлопот жильцам домов, увлажнив им подвалы. Этот период показал насколько важно обеспечить надлежащую защиту зданий от грунтовых вод и воздействия влаги....

Виды фундаментов

Можно смело сказать, что самое главное качество фундамента - надежность. Фундамент дома бывает нескольких видов. Все они отличаются прочностью, технологией закладывания и областью использования. Запомните, экономить на фундаменте – плохая идея. Затраты на ремонт будут огромными, а зачастую в случае нарушения технологии закладки фундамента исправить ошибку будет невозможно....

Проекты домов и коттеджей > Каталог проектов домов > Дом с мансардой, гаражом, террасой и балконом Vg2209

Дом с мансардой, гаражом, террасой и балконом Vg2209

Дом с мансардой, гаражом, террасой и балконом
Зарегистрируйтесь

Проект № Vg2209


Техническое описание
Общая площадь: 157.49 м2
Жилая площадь: 90.4 м2
Высота здания: 9.09 м
Размеры дома: 12.04м×11.24м
Кол-во комнат: 5
Цокольный этаж: нет
Гараж: нет
Мансарда: есть

Kонструкция
Фундамент: ленточный монолитный ж/б
Перекрытия: деревянные балки
Материал стен: Газобетон

Архитектурный раздел
Конструктивный раздел
АР+КР - 56 000 (Со скидкой 20%)
Проект индивидуального одноэтажного жилого дома с мансардой с размерами здания 12,04 x 11,24 м. Наружная отделка здания – штукатурка, камень. Фундамент – ленточный монолитный ж/б. Наружные стены – газобетонные блоки, мин. вата, штукатурка, камень. Внутренние стены – газобетонные блоки Перегородки – газобетонные блоки, каркасные с ГКЛ. Пол 1 этажа - пол по грунту, межэтажное перекрытие - деревянные балки. Крыша многоскатная. Кровля – ондулин. Окна — металлопластиковые
Генплан застройки участка / Паспорт проекта 7000 руб / 10000 руб
Инженерный раздел (полный) 78500 руб
Смета на строительство 39250 руб
Теплотехнический расчет материалов стен Бесплатно
Стоимость проекта со незначительнми изменениями 66050 руб
Стоимость проекта со средними изменениями* 77900 руб
Стоимость проекта со значительными изменениями** 81000 руб

План первого этажа


Тамбур — 1,71 м2
Холл — 8,14 м2
Гостиная — 25,35 м2
Столовая — 5,98 м2
Кухня — 6,81 м2
С/у — 4,37 м2
Бойлерная — 6,65 м2
Гараж — 19,27 м2

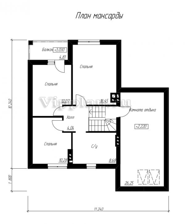
План мансардного этажа


Холл — 4,04 м2
Спальня — 16,45 м2
Спальня — 12,07 м2
Спальня — 10,28 м2
С/у — 8,68 м2
Комната отдыха — 26,25 м2
Дом с мансардой, гаражом, террасой и балконом Дом с мансардой, гаражом, террасой и балконом Дом с мансардой, гаражом, террасой и балконом Дом с мансардой, гаражом, террасой и балконом

Модификации проектов

Внесение изменений и привязка к участку строительства

В любой из проектов от компании VIPplan - Можга по вашему желанию могут быть внесены изменения в материалы стен, материалы наружной отделки дома, а также будет произведена адаптация проекта под конкретный регион строительства (с учетом грунтов региона, геологических особенностей вашего участка и местных климатических условий) - БЕСПЛАТНО !!! (кроме проектов со скидкой и проектов наших партнеров).

Любой из проектов, размещенных на сайте mojga.vipplan.ru мы можем выполнить из требуемых вам строительных материалов: ячеистый бетон (газобетон, пеноблок), керамоблок, кирпич, шлакоблок, бетонный блок, дерево (брус, клееный брус), каркасная технология (деревянный каркас, металлокаркас (ЛСТК)).

Фасад дома и его наружную отделку так же возможно выполнить с применением различных облицовочных материалов: структурной штукатурки, (с утеплителем и без), сайдингом (пластиковый или металлосайдинг), фиброплитами, кирпича.

 
6 Избранные
проекты

Доставка проектов по России: Москва (Московская область), Санкт-Петербург (Ленинградская область), Краснодар, Ростов-на-Дону, Ставрополь, Сочи, Волгоград, Новосибирск, Белгород, Брянск, Воронеж, Саратов, Хабаровск, Астрахань, Нальчик, Владикавказ, Екатеринбург, Тюмень, Самара, Нижний Новгород, Казань, Пермь, Уфа, Челябинск, Красноярск, Ханты-Мансийск, Иркутск, Курган, Оренбург, Омск, Томск, Барнаул, Новокузнецк, Кемерово, Абакан, Чита, Якутск, Южно-Сахалинск, Петропавловск-Камчатский и страны ближнего зарубежья: Белоруссия, Украина, Казахстан