Добро пожаловать на http://vipplan.ru

Випплан Можга - это тысячи проектов домов в нашем каталоге!

Вы всегда сможете найти для себя проект дома вашей мечты! Даже если этого не случилось, мы готовы в любую минуту предложить проект индивидуального дома.

Забыли пароль?
Вы еще не регистрировались?

Перейдите по ссылке ниже на страницу регистрации.

Регистрация...

Внимание!!!

В проектную документацию могут быть внесены изменения любой сложности, в соответствии в Вашими пожеланиями!

Полезные статьи

Выбор проекта дома (площадь, этажность - 1 или 2 этажа)

Для того что бы выбрать проект дома, предварительно необходимо определиться, какой будет площадь будущего дома (решение зависит от количества человек, планирующих постоянно в нем проживать), количество спален, санузлов и ванных комнат, компоновка дома, одноэтажный, масардный или двухэтажный дом (зависит от площади участка и предпочтений будущих хозяев) ...

Проект дома

Строительство дома начинается с подготовительного этапа, основной частью которого является проект. Разработка дизайнерского проекта сопровождается оформлением документов после выбора участка....

Проекты домов и коттеджей > Каталог проектов домов > Компактный одноэтажный дом с мансардой Vg2346

Компактный одноэтажный дом с мансардой Vg2346

Компактный одноэтажный дом с мансардой
Зарегистрируйтесь

Проект № Vg2346


Техническое описание
Общая площадь: 86 м2
Жилая площадь: 45 м2
Высота здания: 8.45 м
Размеры дома: 10.92м×7.84м
Кол-во комнат: 4
Цокольный этаж: нет
Гараж: нет
Мансарда: есть

Kонструкция
Фундамент: Ленточный монолитный ж/б
Перекрытия: Деревянные балки
Материал стен: Газобетон

Архитектурный раздел
Конструктивный раздел
АР+КР - 44 000 (Со скидкой 20%)
Модель проекта индивидуального одноэтажного жилого дома с мансардой с размерами здания 10,92 x 7,84 м. Наружная отделка здания - фасадная штукатурка. Фундамент - ленточный монолитный ж/б. Наружные стены - газобетонный блок с утеплителем и отделкой фасадной штукатуркой. Внутренние стены - газобетонный блок. Перегородки - гипсокартон на металлическом каркасе. Пол первого этажа - пол по грунту. Межэтажное перекрытие - деревянные балки перекрытия. Крыша - двускатная. Кровля - битумная черепица. Окна - металлопластиковые. Лестница - металлическая.
Генплан застройки участка / Паспорт проекта 7000 руб / 10000 руб
Инженерный раздел (полный) 50000 руб
Смета на строительство 25000 руб
Теплотехнический расчет материалов стен Бесплатно
Стоимость проекта со незначительнми изменениями 52850 руб
Стоимость проекта со средними изменениями* 59300 руб
Стоимость проекта со значительными изменениями** 61000 руб

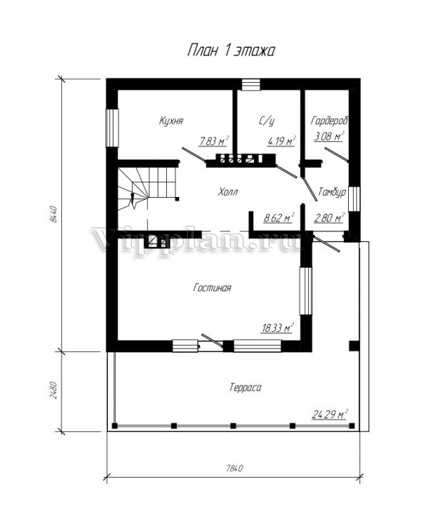
План первого этажа


Тамбур - 2,80 кв м
Гардероб - 3,08 кв м
С/у - 4,19 кв м
Кухня - 7,83 кв м
Холл - 8,62 кв м
Гостиная - 18,33 кв м

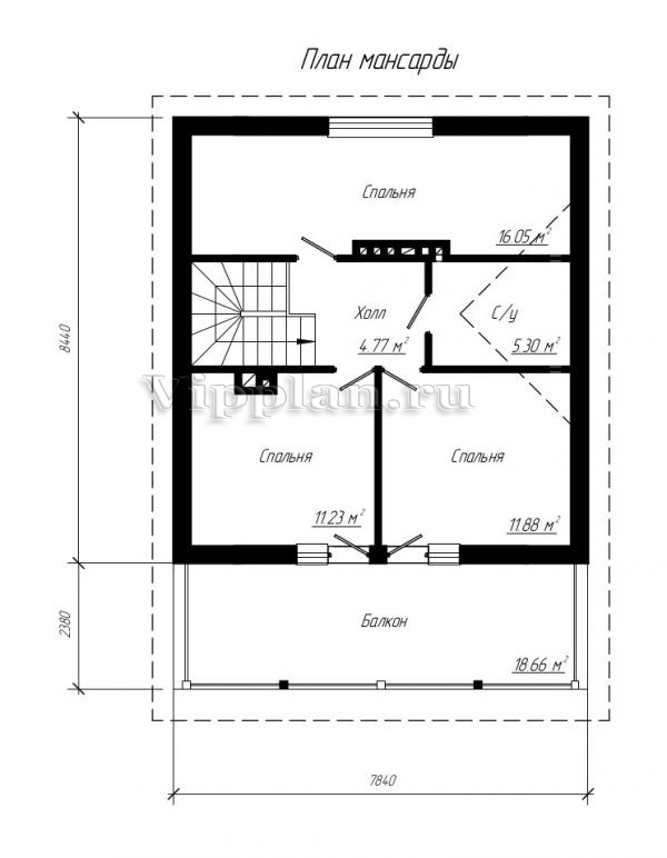
План мансардного этажа


Холл - 4,77 кв м
Спальня - 11,24 кв м
С/у - 3,71 кв м
Спальня - 8,32 кв м
Спальня - 7,86 кв м
Балкон — 5,60 кв м
Компактный одноэтажный дом с мансардой Компактный одноэтажный дом с мансардой Компактный одноэтажный дом с мансардой Компактный одноэтажный дом с мансардой

Модификации проектов

Внесение изменений и привязка к участку строительства

В любой из проектов от компании VIPplan - Можга по вашему желанию могут быть внесены изменения в материалы стен, материалы наружной отделки дома, а также будет произведена адаптация проекта под конкретный регион строительства (с учетом грунтов региона, геологических особенностей вашего участка и местных климатических условий) - БЕСПЛАТНО !!! (кроме проектов со скидкой и проектов наших партнеров).

Любой из проектов, размещенных на сайте mojga.vipplan.ru мы можем выполнить из требуемых вам строительных материалов: ячеистый бетон (газобетон, пеноблок), керамоблок, кирпич, шлакоблок, бетонный блок, дерево (брус, клееный брус), каркасная технология (деревянный каркас, металлокаркас (ЛСТК)).

Фасад дома и его наружную отделку так же возможно выполнить с применением различных облицовочных материалов: структурной штукатурки, (с утеплителем и без), сайдингом (пластиковый или металлосайдинг), фиброплитами, кирпича.

 
6 Избранные
проекты

Доставка проектов по России: Москва (Московская область), Санкт-Петербург (Ленинградская область), Краснодар, Ростов-на-Дону, Ставрополь, Сочи, Волгоград, Новосибирск, Белгород, Брянск, Воронеж, Саратов, Хабаровск, Астрахань, Нальчик, Владикавказ, Екатеринбург, Тюмень, Самара, Нижний Новгород, Казань, Пермь, Уфа, Челябинск, Красноярск, Ханты-Мансийск, Иркутск, Курган, Оренбург, Омск, Томск, Барнаул, Новокузнецк, Кемерово, Абакан, Чита, Якутск, Южно-Сахалинск, Петропавловск-Камчатский и страны ближнего зарубежья: Белоруссия, Украина, Казахстан