Добро пожаловать на http://vipplan.ru

Випплан Можга - это тысячи проектов домов в нашем каталоге!

Вы всегда сможете найти для себя проект дома вашей мечты! Даже если этого не случилось, мы готовы в любую минуту предложить проект индивидуального дома.

Забыли пароль?
Вы еще не регистрировались?

Перейдите по ссылке ниже на страницу регистрации.

Регистрация...

Внимание!!!

В проектную документацию могут быть внесены изменения любой сложности, в соответствии в Вашими пожеланиями!

Полезные статьи

Выбор проекта дома в Можге. Типовой или индивидуальный?

Строительство дома начинается с выбора проекта. От него будет зависит удобство, комфорт и функциональность Вашего будущего дома. Какой проект выбрать? В каталоге проектов домов VIPplan Можга предоставлен огромный выбор проектов на любой вкус и кошелек. В итоге выбор сводится к покупке типового проекта дома или заказа индивидуального проекта. Для упращения задачи, расскажем о каждом варианте по отдельности...

Приобретение земельного участка в собственность

Вы собираетесь приобрести участок. Прежде чем принять окончательное решение, тщательно изучите местность, на которой находится ваш участок, внимательно осмотрите местность. Узнайте о близости реки или других водоемах, всмотритесь в рельеф. Каждый из факторов может иметь неоспоримые плюсы, а также минусы, способные повлиять на окончательное решение. Стоит принять во внимание, что земельные участки, которые продаются «напрямую», дешевле тех, которые реализуют, пользуясь услугами посредников....

Проекты домов и коттеджей > Каталог проектов домов > Двухэтажный дом с мансардой, подвалом, гаражом, террасой и балконом Vg2444

Двухэтажный дом с мансардой, подвалом, гаражом, террасой и балконом Vg2444

Двухэтажный дом с мансардой, подвалом, гаражом, террасой и балконом
Зарегистрируйтесь

Проект № Vg2444


Техническое описание
Общая площадь: 334.35 м2
Жилая площадь: 177.87 м2
Высота здания: 11.74 м
Размеры дома: 12.56м×11.06м
Кол-во комнат: 5
Цокольный этаж: есть
Гараж: нет
Мансарда: есть

Kонструкция
Фундамент: монолитная ж/б плита под всей площадью дома
Перекрытия: монолитные ж/б плиты
Материал стен: Бетонные блоки

Архитектурный раздел
Конструктивный раздел
АР+КР - 84 000 (Со скидкой 20%)
Модель проекта двухэтажного дома с мансардой и подвалом с размерами здания 12,56 x 11,56 м. Наружная отделка здания – фасадные панели. Фундамент –монолитная ж/б плита под всей площадью дома. Наружные стены – андезитобазальтовые блоки с утеплением минеральной ватой и отделкой. Внутренние стены - андезитобазальтовые блоки. Перегородки - андезитобазальтовые блоки. Пол подвала - пол по монолитной плите, межэтажные перекрытия - монолитные ж/б перекрытия. Крыша четырехскатная. Кровля – битумная черепица. Окна — металлопластиковые.
Генплан застройки участка / Паспорт проекта 7000 руб / 10000 руб
Инженерный раздел (полный) 167000 руб
Смета на строительство 83500 руб
Теплотехнический расчет материалов стен Бесплатно
Стоимость проекта со незначительнми изменениями 96650 руб
Стоимость проекта со средними изменениями* 121700 руб
Стоимость проекта со значительными изменениями** 128400 руб

План цокольного этажа


Холл — 13,34 м2
Помещение1 — 9,26 м2
Помещение2 — 20,08 м2
Помещение3 — 6,3 м2
Постирочная — 8,64 м2
Бойлерная — 11,84 м2

План первого этажа


Холл — 12,27 м2
Гостиная — 23,87 м2
Кухня — 14,09 м2
Кабинет — 8,54 м2
С/у — 2,62 м2
Прихожая — 6,33 м2
Гараж — 19,14 м2

Двухэтажный дом с мансардой, подвалом, гаражом, террасой и балконом

Двухэтажный дом с мансардой, подвалом, гаражом, террасой и балконом

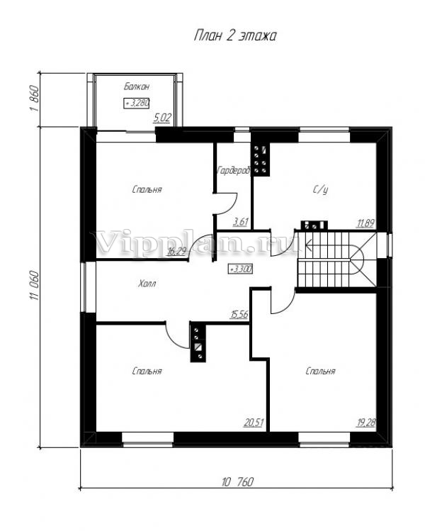
План второго этажа


Холл — 15,56 м2
Спальня — 16,29 м2
Гардероб — 3,61 м2
С/у — 11,89 м2
Спальня — 19,28 м2
Спальня — 20,51 м2

План мансардного этажа


Помещение — 89,38 м2
Двухэтажный дом с мансардой, подвалом, гаражом, террасой и балконом Двухэтажный дом с мансардой, подвалом, гаражом, террасой и балконом Двухэтажный дом с мансардой, подвалом, гаражом, террасой и балконом Двухэтажный дом с мансардой, подвалом, гаражом, террасой и балконом

Модификации проектов

Внесение изменений и привязка к участку строительства

В любой из проектов от компании VIPplan - Можга по вашему желанию могут быть внесены изменения в материалы стен, материалы наружной отделки дома, а также будет произведена адаптация проекта под конкретный регион строительства (с учетом грунтов региона, геологических особенностей вашего участка и местных климатических условий) - БЕСПЛАТНО !!! (кроме проектов со скидкой и проектов наших партнеров).

Любой из проектов, размещенных на сайте mojga.vipplan.ru мы можем выполнить из требуемых вам строительных материалов: ячеистый бетон (газобетон, пеноблок), керамоблок, кирпич, шлакоблок, бетонный блок, дерево (брус, клееный брус), каркасная технология (деревянный каркас, металлокаркас (ЛСТК)).

Фасад дома и его наружную отделку так же возможно выполнить с применением различных облицовочных материалов: структурной штукатурки, (с утеплителем и без), сайдингом (пластиковый или металлосайдинг), фиброплитами, кирпича.

 
6 Избранные
проекты

Доставка проектов по России: Москва (Московская область), Санкт-Петербург (Ленинградская область), Краснодар, Ростов-на-Дону, Ставрополь, Сочи, Волгоград, Новосибирск, Белгород, Брянск, Воронеж, Саратов, Хабаровск, Астрахань, Нальчик, Владикавказ, Екатеринбург, Тюмень, Самара, Нижний Новгород, Казань, Пермь, Уфа, Челябинск, Красноярск, Ханты-Мансийск, Иркутск, Курган, Оренбург, Омск, Томск, Барнаул, Новокузнецк, Кемерово, Абакан, Чита, Якутск, Южно-Сахалинск, Петропавловск-Камчатский и страны ближнего зарубежья: Белоруссия, Украина, Казахстан