Добро пожаловать на http://vipplan.ru

Випплан Можга - это тысячи проектов домов в нашем каталоге!

Вы всегда сможете найти для себя проект дома вашей мечты! Даже если этого не случилось, мы готовы в любую минуту предложить проект индивидуального дома.

Забыли пароль?
Вы еще не регистрировались?

Перейдите по ссылке ниже на страницу регистрации.

Регистрация...

Внимание!!!

В проектную документацию могут быть внесены изменения любой сложности, в соответствии в Вашими пожеланиями!

Полезные статьи

Печи и камины в частном доме

Спросите любого человека, и вы поймете, что каждый человек мечтает иметь свой собственный дом, который он сможет обустроить так, как ему хочется. Этот дом будет полон уюта, тепла, света и комфорта, а главное, что, придя с работы, человек сможет запросто отдохнуть у своего очага.  Нет никакой альтернативы перед выбором печи или камина. Эти две вещи не сможет  заменить ни искусственный свет, ни солнечное освещение. Камин и печь, с древности, считаются предметом роскоши. Ни один большой дом не может обойтись без них, поскольку если удастся сесть и посидеть перед этим местом, то долго нельзя будет...

Системы утепления фасада

Основные тепловые потери происходят через стены, фундамент и крышу. Уменьшить их можно с помощью утеплителя, создав внутри дома оптимальный для жизни климат, с достаточно ровным температурным режимом и низкой влажностью....

Проекты домов и коттеджей > Каталог проектов домов > Дом с мансардой, гаражом, эркером, террасой и балконами Vg2454

Дом с мансардой, гаражом, эркером, террасой и балконами Vg2454

Дом с мансардой, гаражом, эркером, террасой и балконами
Зарегистрируйтесь

Проект № Vg2454


Техническое описание
Общая площадь: 218.39 м2
Жилая площадь: 132.79 м2
Высота здания: 9.88 м
Размеры дома: 13.56м×12.76м
Кол-во комнат: 5
Цокольный этаж: нет
Гараж: нет
Мансарда: есть

Kонструкция
Фундамент: монолитная ж/б плита
Перекрытия: сборные ж/б плиты
Материал стен: Бетонные блоки

Архитектурный раздел
Конструктивный раздел
Инженерный раздел
АР+КР - 64 000 (Со скидкой 20%)
АР+КР+ИР - 140 300 (Со скидкой 50%)
Модель проекта одноэтажного дома с мансардой с размерами здания 13,56 x 12,76 м. Наружная отделка здания – фасадные панели. Фундамент – монолитная ж/б плита под всей площадью дома. Наружные стены – пароизоляция, газобетонные блоки с утеплением пенополистиролом, воздушным зазором и отделкой облицовочным кирпичом. Внутренние стены - газобетонные блоки. Перегородки - газобетонные блоки. Пол подвала - пол по монолитной плите, межэтажные перекрытия - сборные ж/б перекрытия. Крыша многоскатная. Кровля – металлочерепица. Окна — металлопластиковые.
Генплан застройки участка / Паспорт проекта 7000 руб / 10000 руб
Инженерный раздел (полный) 76300 руб (109000 руб)
Смета на строительство 54500 руб
Теплотехнический расчет материалов стен Бесплатно
Стоимость проекта со незначительнми изменениями 74550 руб
Стоимость проекта со средними изменениями* 90900 руб
Стоимость проекта со значительными изменениями** 95300 руб

План первого этажа


Тамбур — 4,95 м2
Холл — 12,25 м2
Гостиная — 38,54 м2
Кухня — 10,23 м2
Кладовая — 1,71 м2
С/у — 3,1 м2
Гостевая — 16,64 м2
Бойлерная — 4,47 м2
Гараж — 20,4 м2

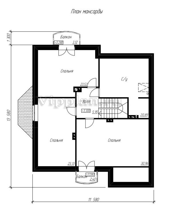
План мансардного этажа


Холл — 5,95 м2
Спальня — 30,96 м2
Спальня — 23,13 м2
Спальня — 23,52 м2
С/у — 20,89 м2
Дом с мансардой, гаражом, эркером, террасой и балконами Дом с мансардой, гаражом, эркером, террасой и балконами Дом с мансардой, гаражом, эркером, террасой и балконами Дом с мансардой, гаражом, эркером, террасой и балконами

Модификации проектов

Внесение изменений и привязка к участку строительства

В любой из проектов от компании VIPplan - Можга по вашему желанию могут быть внесены изменения в материалы стен, материалы наружной отделки дома, а также будет произведена адаптация проекта под конкретный регион строительства (с учетом грунтов региона, геологических особенностей вашего участка и местных климатических условий) - БЕСПЛАТНО !!! (кроме проектов со скидкой и проектов наших партнеров).

Любой из проектов, размещенных на сайте mojga.vipplan.ru мы можем выполнить из требуемых вам строительных материалов: ячеистый бетон (газобетон, пеноблок), керамоблок, кирпич, шлакоблок, бетонный блок, дерево (брус, клееный брус), каркасная технология (деревянный каркас, металлокаркас (ЛСТК)).

Фасад дома и его наружную отделку так же возможно выполнить с применением различных облицовочных материалов: структурной штукатурки, (с утеплителем и без), сайдингом (пластиковый или металлосайдинг), фиброплитами, кирпича.

 
6 Избранные
проекты

Доставка проектов по России: Москва (Московская область), Санкт-Петербург (Ленинградская область), Краснодар, Ростов-на-Дону, Ставрополь, Сочи, Волгоград, Новосибирск, Белгород, Брянск, Воронеж, Саратов, Хабаровск, Астрахань, Нальчик, Владикавказ, Екатеринбург, Тюмень, Самара, Нижний Новгород, Казань, Пермь, Уфа, Челябинск, Красноярск, Ханты-Мансийск, Иркутск, Курган, Оренбург, Омск, Томск, Барнаул, Новокузнецк, Кемерово, Абакан, Чита, Якутск, Южно-Сахалинск, Петропавловск-Камчатский и страны ближнего зарубежья: Белоруссия, Украина, Казахстан